Каркасные дома в стиле BarnHouse под ключ в Челябинске
• Уже готовые проекты: продуманные до мелочей и рассчитанные по нагрузкам, что бы прослужить 100 лет
• Только сухая, строганная доска: идеальная геометрия стен и долговечность в 10 раз выше обычной доски.
• Каркас подготавливается в цеху: минимум шумных и грязных работ на вашем участке, также не зависим от погоды.
• Фото-видео отчет на всех этапах строительства
• Бесплатно организуем видео наблюдение на строительной площадке.
• Имеем собственное производство бань, беседок, хозяйственных блоков - построим всё в едином стиле с домом
• Только сухая, строганная доска: идеальная геометрия стен и долговечность в 10 раз выше обычной доски.
• Каркас подготавливается в цеху: минимум шумных и грязных работ на вашем участке, также не зависим от погоды.
• Фото-видео отчет на всех этапах строительства
• Бесплатно организуем видео наблюдение на строительной площадке.
• Имеем собственное производство бань, беседок, хозяйственных блоков - построим всё в едином стиле с домом
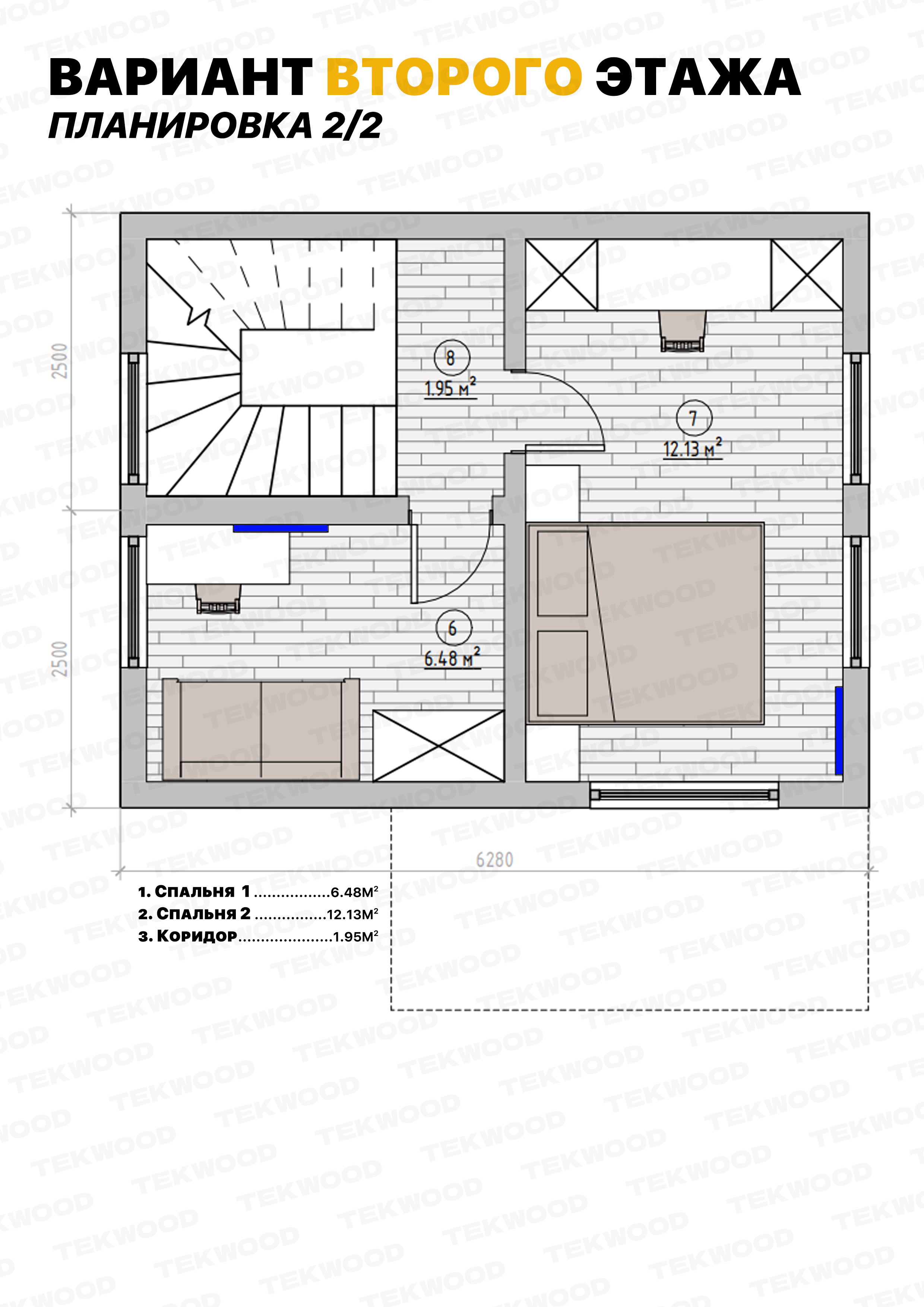
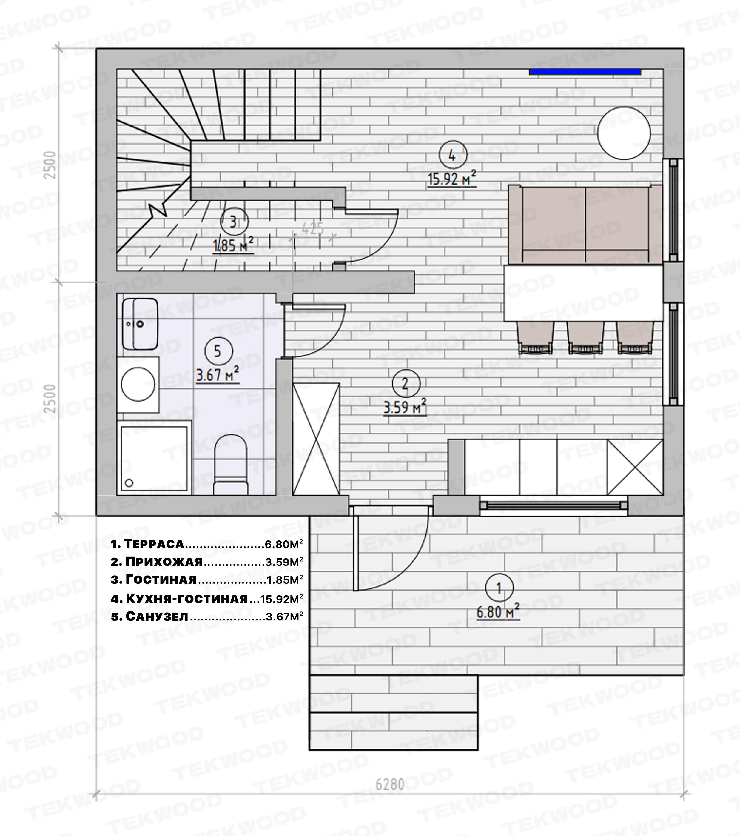
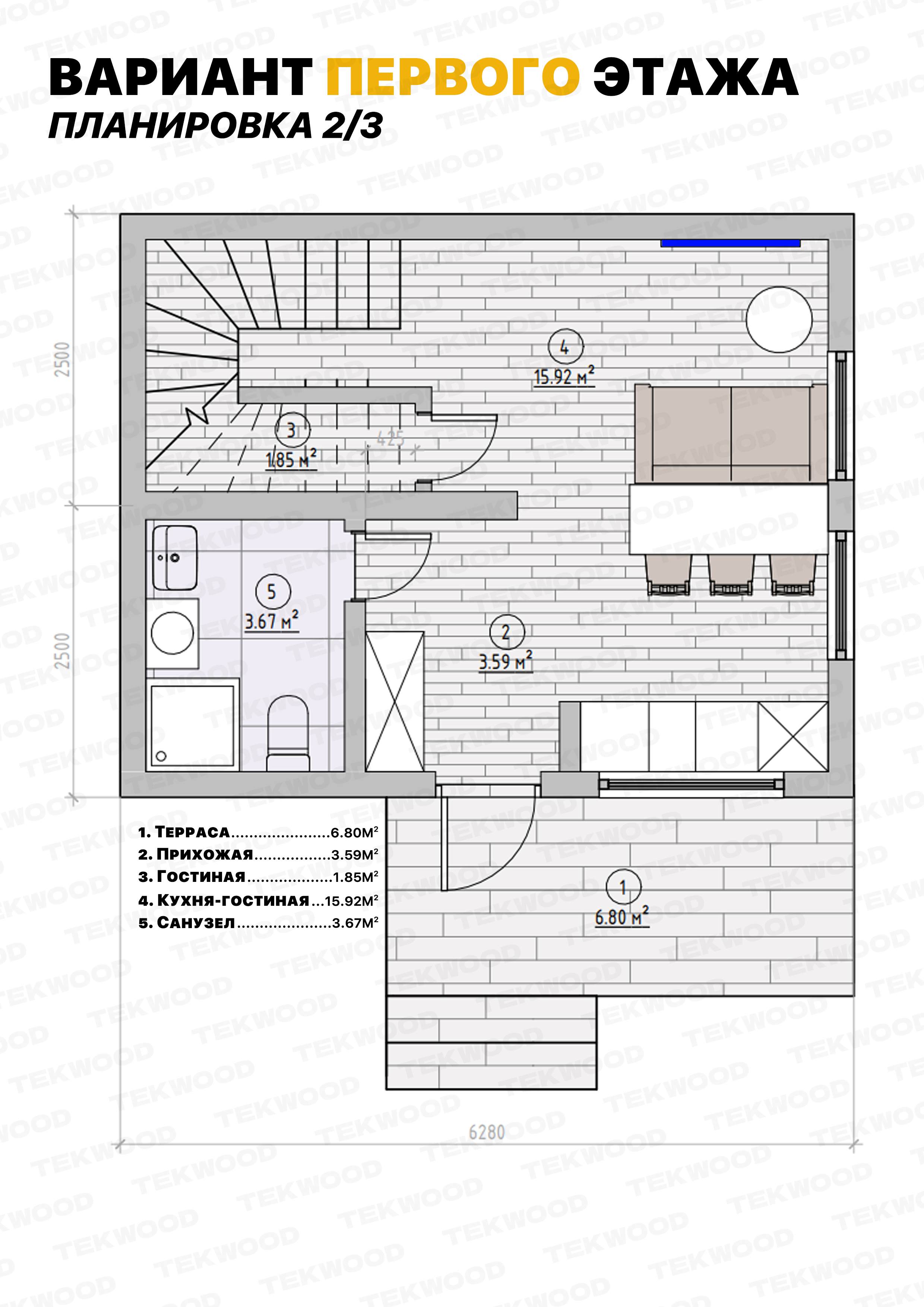
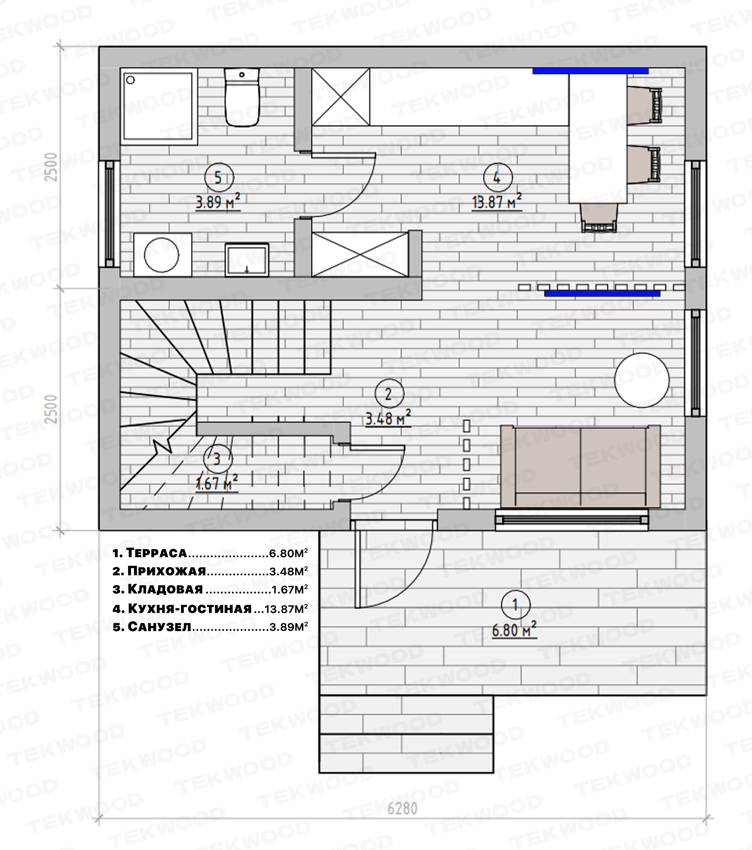
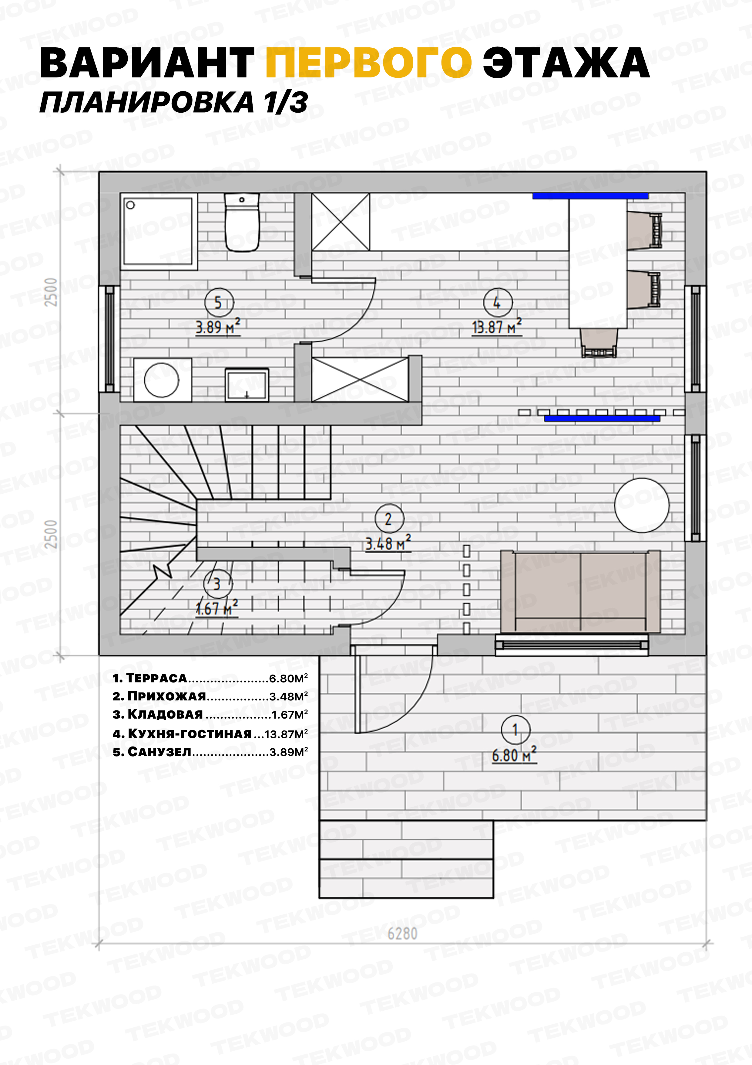
Обзор 2-х этажного дома
Красивый, уютный и современный 2-х этажный модульный дом, с доставкой и установкой за 1.5 месяца
Не нашли подходящий проект?
На нашей выставке вы можете ознакомиться с остальными проектами.
Также разработаем индивидуальный проект основываясь на ваших предпочтениях!
Также разработаем индивидуальный проект основываясь на ваших предпочтениях!
Почему нас выбирают?
Фото-видео отчетность
При заключении договора добавляем Вас в чат в любой социальной сети и скидываем фотографии/видео на всех этапах производства, в том числе скрытых
Быстрее чем обычная стройка дома
Стройка и доставка с установкой занимает 1.5-2 месяца (из них основная часть в цеху)
Лестница по ГОСТ
Единственные на рынке в Челябинской области, кто строят двух этажные модульные дома с лестницей по ГОСТ
Никакого мусора
Производим дома в теплом цеху, весь строительный мусор остается у нас, а к вам приезжает уже готовый дом
Квалифицированная команда
Вам не нужно искать подрядчиков, у нас есть большая команда профессионалов, заинтересованных в качественной стройке
Готовы к Уральским морозам
С помощью специальных технологий сборки стен, мы добиваемся эффекта "термоса", тем самым дом будет отлично сохранять тепло
Дом стал мал? У нас есть решение!
Благодаря технологии "Растущий дом", наши дома можно расширить в случае необходимости. Если вашему дому требуется увеличение жилой площади или дополнительное помещение, мы готовы построить и присоединить дополнительный модуль.
Мы в социальных сетях
Мы активно ведем соц. сети и ежедневно загружаем новые ролики про наши дома и бани!
Обозначения:
✓ — входит в базовую комплектацию
+ — дополнительная комплектация
✓ — входит в базовую комплектацию
+ — дополнительная комплектация
Каркас:
✓ Конструктив из строганной доски камерной сушки 145х45
✓ Основание пола и потолка доска 145х45 камерной сушки и установка металлической сетки от грызунов ячейкой 5мм
✓ Утепление стен, пола и потолка 150мм. Применяется утеплитель Knauf Insulation Aquastatik TS 037
✓ Пароизоляция Изоспан RS
✓ Ветрозащита Изоспан А
✓ Контр брус 25x35мм
Веранда\Крыльцо:
✓ Пол — террасная доска хвойных пород
✓ Столбы 100x100 строганый брус + ограждение — опционально
Внешняя отделка:
✓ Фасад на выбор: планкен, имитация бруса, вагонка, профнастил
✓ Кровля — рулонная технониколь + пвх-мембрана + водосточная система
Внутренняя отделка:
✓ Стены — на выбор: планкен, вагонка, имитация бруса
✓ Потолок — натяжной + отделка потолка деревянной вагонкой
✓ Пол — шпунтовая доска + основание из фанеры + линолеум + кварц-винил + теплый пол
Покраска:
✓ Снаружи — декоративная пропитка + масло для наружных работ
✓ Внутри — декоративная пропитка + масло для внутренних работ + эмаль по дереву
Двери и окна:
✓ Входная — на выбор: железная или ПВХ - дверной профиль c нажимной гарнитурой и замком
✓ Межкомнатные двери — царговые
✓ Окна — на выбор: панорамный энергосберегающий стеклопакет с i напылением или базовое ПВХ окно (1300*1400)
Инженерные коммуникации:
✓ Электропроводка ГОСТ ВВГНГ ЛС
✓ Вводной-распределительный щит, автоматические выключатели, УЗО.
✓ Светильники GX53, уличное освещение
✓ Розетки и выключатели Schneider
✓ Приточные клапана в каждом помещении, в санузле и кухне принудительная вытяжка
✓ Разводка воды и канализации внутри помещений
✓ Конструктив из строганной доски камерной сушки 145х45
✓ Основание пола и потолка доска 145х45 камерной сушки и установка металлической сетки от грызунов ячейкой 5мм
✓ Утепление стен, пола и потолка 150мм. Применяется утеплитель Knauf Insulation Aquastatik TS 037
✓ Пароизоляция Изоспан RS
✓ Ветрозащита Изоспан А
✓ Контр брус 25x35мм
Веранда\Крыльцо:
✓ Пол — террасная доска хвойных пород
✓ Столбы 100x100 строганый брус + ограждение — опционально
Внешняя отделка:
✓ Фасад на выбор: планкен, имитация бруса, вагонка, профнастил
✓ Кровля — рулонная технониколь + пвх-мембрана + водосточная система
Внутренняя отделка:
✓ Стены — на выбор: планкен, вагонка, имитация бруса
✓ Потолок — натяжной + отделка потолка деревянной вагонкой
✓ Пол — шпунтовая доска + основание из фанеры + линолеум + кварц-винил + теплый пол
Покраска:
✓ Снаружи — декоративная пропитка + масло для наружных работ
✓ Внутри — декоративная пропитка + масло для внутренних работ + эмаль по дереву
Двери и окна:
✓ Входная — на выбор: железная или ПВХ - дверной профиль c нажимной гарнитурой и замком
✓ Межкомнатные двери — царговые
✓ Окна — на выбор: панорамный энергосберегающий стеклопакет с i напылением или базовое ПВХ окно (1300*1400)
Инженерные коммуникации:
✓ Электропроводка ГОСТ ВВГНГ ЛС
✓ Вводной-распределительный щит, автоматические выключатели, УЗО.
✓ Светильники GX53, уличное освещение
✓ Розетки и выключатели Schneider
✓ Приточные клапана в каждом помещении, в санузле и кухне принудительная вытяжка
✓ Разводка воды и канализации внутри помещений
Каждый дом уже оборудован всем необходимым
Комплектация дома
Обозначения:
+ — дополнительная комплектация
+ — дополнительная комплектация
Веранда\Крыльцо:
+ Ограждение — опционально 3000 руб/м.п.
Кровля:
+ ПВХ мембрана 2000 руб/м2
+ Водосточная система 1000 руб/м.п.
Внутренняя отделка:
+ Потолок — отделка деревянной вагонкой 1000 руб/м2
+ Пол — освнование из фанеры 1100 руб/м2
+ Пол — линолеум 1500 руб/м2
+ Пол — кварц-винил 2700 руб/м2
Покраска:
+ Снаружи — масло для наружных работ 700 руб/м2
+ Внутри — масло для внутренних работ 700 руб/м2
+ Внутри — эмаль по дереву 1000 руб/м2
Инженерные коммуникации:
+ Теплый пол Технолюкс с применением ЦСП листов 1500 руб/м2
+ Греющий кабель при вводе воды в дом 5000 руб/комплект
Комплектация санузла:
+ Душевая кабина индивидуально
+ Унитаз, раковина с тумбой, зеркало, смеситель индивидуально
+ Бойлер на 50 литров индивидуально
Другое:
+ Винтовые сваи 7200 руб/шт
+ Мебель и бытовая техника индивидуально
+ Лестница к веранде или дому 6000 руб/м2
+ Ограждение — опционально 3000 руб/м.п.
Кровля:
+ ПВХ мембрана 2000 руб/м2
+ Водосточная система 1000 руб/м.п.
Внутренняя отделка:
+ Потолок — отделка деревянной вагонкой 1000 руб/м2
+ Пол — освнование из фанеры 1100 руб/м2
+ Пол — линолеум 1500 руб/м2
+ Пол — кварц-винил 2700 руб/м2
Покраска:
+ Снаружи — масло для наружных работ 700 руб/м2
+ Внутри — масло для внутренних работ 700 руб/м2
+ Внутри — эмаль по дереву 1000 руб/м2
Инженерные коммуникации:
+ Теплый пол Технолюкс с применением ЦСП листов 1500 руб/м2
+ Греющий кабель при вводе воды в дом 5000 руб/комплект
Комплектация санузла:
+ Душевая кабина индивидуально
+ Унитаз, раковина с тумбой, зеркало, смеситель индивидуально
+ Бойлер на 50 литров индивидуально
Другое:
+ Винтовые сваи 7200 руб/шт
+ Мебель и бытовая техника индивидуально
+ Лестница к веранде или дому 6000 руб/м2
Дополнительная комплектация
Приезжайте в гости
Записывайтесь на встречу заранее, инженер может быть на выезде
Адрес: Свердловский проспект, 32а/3
График работы выставки: Вт-Вс с 9:30 до 17:00
Прямо сейчас вы можете посмотреть на строительство дома в живую
на производстве в Челябинске